Offene Bes. Sa. 18.04. von 10:00-11:00 Uhr: Moderne und sonnige DHH in Bonlanden
Objektart
Adresse
Objektdaten
Informationen
Ausstattung
Details
Kommen Sie zu unserer offenen Besichtigung am Samstag, den 18.04.26 von 10:00-11:00 Uhr:
Adresse: Poststr. 26 (Baulücke rechts von Poststr. 28) 70794 Filderstadt
Wir freuen uns auf Sie!
In beliebter und sonniger Lage von Filderstadt-Bonlanden entsteht diese hochwertige Neubau Doppelhaushälfte mit moderner Architektur, ideal für Familien mit Platzbedarf.
Die Immobilie überzeugt mit einer großzügigen Raumaufteilung, einer lichtdurchfluteten Gestaltung mit viel Verglasung sowie einer soliden Bauweise und Ausstattung.
Haus 1:
Über einen einladenden Eingangsbereich mit Platz für Garderobe und Gäste-WC, gelangt man in den offen gestalteten Wohn-, Ess- und Kochbereich. Große Fensterflächen sorgen für viel Tageslicht und schaffen eine freundliche Atmosphäre. Von hier gelangen Sie in den sonnigen Garten, der sich ideal für Familienleben, Spiel und Erholung eignet. Im Obergeschoss steht Ihnen ein großes und helles Kinderzimmer sowie ein komfortables Elternschlafzimmer zur Verfügung. Ein modernes Tageslichtbad ist direkt nebenan - ideal für die ganze Familie.
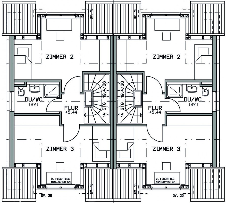
Zwei weitere geräumige Zimmer im Dachgeschoss, flexibel nutzbar als Kinder-, Gäste- oder Arbeitszimmer, bieten Ihnen zusätzlichen Platz für Ihre individuellen Bedürfnisse. Auf Wunsch kann hier ein Tageslichtduschbad realisiert werden - ideal für größere Familien.
Ein großzügiger Hobbykeller, im Wohnraumstandard ausgebaut und mit großem Lichtschacht für natürlichen Tageslichteinfall, lädt zu vielseitiger Nutzung ein - ob Fitness, Spielzimmer oder Heimkino. Zusätzlich bietet ein separater Kellerraum viel Stauraum. Nebenan befindet sich die Waschküche.
Die Fußbodenheizung im ganzen Haus sorgt für ein angenehmes Wohnraumklima.
Das Haus ist bezugsfertig geplant. Alle Bodenbeläge, Malerarbeiten sowie elektrischen Rollläden sind im Preis enthalten. Sämtliche Zimmer sind mit Parkettboden ausgestattet.
Diese Doppelhaushälfte wird in sehr guter Massivbauweise (Stein auf Stein) mit 3-fach Verglasung, Fußbodenheizung, LWWP (GEG 2024) und Photovoltaik-Anlage erstellt, Energieeffizienzklasse A+.
Bonlanden ist ein beliebter Teilort von Filderstadt und bietet eine ideale Kombination aus Ruhe, Familienfreundlichkeit und guter Infrastruktur. Kindergarten, Grundschule, Spielplatz, Apotheke, Bäckerei, ein Edeka- sowie Rewe Supermarkt und das Sport- und Badezentrum Fildorado sind fußläufig erreichbar. Gleichzeitig lädt die grüne Umgebung zu Spaziergängen und Freizeitaktivitäten ein. Über die nahe gelegene B 27 sind Sie rasch am Flughafen und in der Stuttgarter Innenstadt.
Kommen Sie zu unserer offenen Besichtigung am Samstag, den 18.04.26 von 10:00-11:00 Uhr:
Adresse: Poststr. 26 (Baulücke rechts von Poststr. 28) 70794 Filderstadt
Wir freuen uns auf Sie!
Ihre Wünsche können in der Aufteilung noch berücksichtigt werden.
"Ein hochwertiges, modernes Zuhause für die junge Familie, mit viel Raum zur persönlichen Entfaltung - in gefragter Lage von Bonlanden."
