"Wohnen in herrlicher Sonnenlage von Leinfelden" Noch 1 Haus frei. In ruhiger Lage und mit Aussicht
Objektart
Adresse
Objektdaten
Informationen
Ausstattung
Details
In sehr beliebter Wohnlage von Musberg entsteht diese moderne DHH mit 160 m² Wohnfläche und 6 attraktiven Zimmern. Der nach Süden ausgerichtete Garten mit Terrasse lädt zu sommerlichen Aktivitäten ein, mit genügend Platz für die Kinder zum spielen.
Haus 1:
Im Dielenbereich befindet sich die Garderobe und das Gäste-WC. Der geräumige Wohn-Essbereich mit der offenen Küche ist mit viel bodentiefer Verglasung geplant, welche für einen lichtdurchfluteten, behaglichen Wohnbereich sorgt. Von hier aus gelangen Sie auf die Terrasse und in den sonnigen Garten.
Im Obergeschoss stehen Ihnen zwei helle Kinderzimmer zur Verfügung, sowie ein komfortables Tageslichtbad. Auf dieser Etage ist ebenfalls der großzügige Elternbereich geplant.
Ein weiteres geräumiges Gäste- oder Arbeitszimmer ist im Dachgeschoss vorgesehen. Angrenzend ist ein praktischer Abstellraum. Alternativ besteht im Dachgeschoss die Möglichkeit für ein zusätzliches Duschbad.
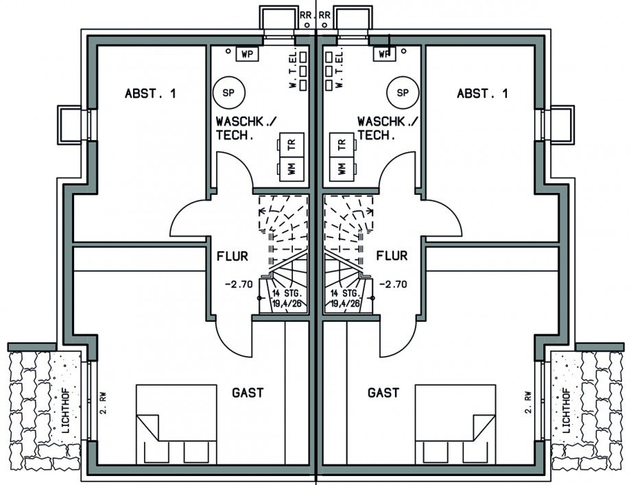
Der Kellerbereich ist optimal genutzt. Hier ist ein großes, im Wohnraumstandard bereits ausgebautes Gäste-/Arbeitszimmer mit Lichthof, welcher für viel Lichteinfall sorgt, geplant. Nebenan befindet sich ein Kellerraum, sowie die Waschküche.
Die Fußbodenheizung im ganzen Haus sorgt für ein angenehmes Wohnraumklima.
Das Haus ist bezugsfertig geplant. Alle Bodenbeläge, Malerarbeiten sowie elektrischen Rollläden sind im Preis enthalten. Sämtliche Zimmer sind mit Parkettboden ausgestattet.
Diese Doppelhaushälfte wird in sehr guter Massivbauweise (Stein auf Stein) mit 3-fach Verglasung, Fußbodenheizung, LWWP (GEG 2024) und Photovoltaik-Anlage erstellt. Energieeffizienzklasse A+.
Die DHH wird in einer familienfreundlichen und sehr beliebten Wohnlage gebaut. Kindergarten, Grundschule und der Supermarkt sind in Fußnähe. Die weiteren Schulen sowie die U-Bahnhaltestelle sind im Nachbarort leicht erreichbar. Das malerische Siebenmühlental lädt zu Spaziergängen und Radtouren ein.
Rufen Sie uns gleich an und vereinbaren Sie einen individuellen Besichtigungstermin.
Wir freuen uns von Ihnen zu hören!
Ihre Wünsche können in der Aufteilung noch berücksichtigt werden.
"Das perfekte Zuhause für die junge Familie, welche naturnah in sehr beliebter Lage modern und sonnig wohnen möchte"
Energieausweis (Bedarfsausweis)
16,40 kWh / (m²*a) Endenergiebedarf
16,40 kWh / (m²*a) Endenergiebedarf
16,40 kWh / (m²*a) Endenergiebedarf
Weitere Informationen
| Wesentlicher Energieträger | Luft-/Wasser-Wärmepumpe |
| Energieausweis Ausstelldatum | 2025-05-20 |
| Energieausweis gültig bis | 2035-05-19 |
| Energieausweis Jahrgang | ab dem 1.5.2014 |
| Energieausweis Werteklasse | A+ |
| Energieausweis Baujahr | 2026 |
| Energieausweis Gebäudeart | Wohngebäude |
| Heizung | Fußbodenheizung |
| Befeuerung | Luft-/Wasser-Wärmepumpe |
