Offene Bes. am Fr. 17.04. von 14:30-15:30 Uhr: Modernes EFH in Ostelsheim
Objektart
Adresse
Objektdaten
Informationen
Ausstattung
Details
Kommen Sie zu unserer offenen Besichtigung am Freitag, den 17.04.26 von 14:30-15:30 Uhr:
Adresse: Holunderweg 48 (Baulücke rechts von Haus Nr. 50) 75395 Ostelsheim
Wir freuen uns auf Sie!
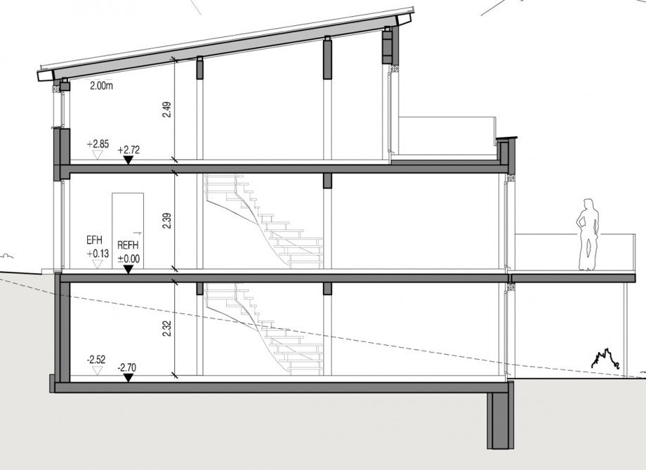
In einem sehr beliebten Neubaugebiet und in traumhafter Aussichtslage von Ostelsheim entsteht dieses moderne EFH mit 5 - 6 Zimmern, verteilt auf 155 m² Wohnfläche.
Der sonnige Garten und der große Balkon sowie die herrliche Dachterrasse sind nach Süden ausgerichtet. Hier können Sie die Aussicht und Ruhe genießen und herrlich entspannen!
Es besteht die Möglichkeit für eine Doppelgarage oder eine große Einzelgarage.
Sie betreten das Haus über die Diele mit Garderobenbereich. Auf dieser Ebene befindet sich auch ein Tageslicht-Duschbad sowie ein Gäste- oder Arbeitszimmer.
Der großzügige und einladende Wohn-Essbereich mit offener Küche ist mit viel bodentiefer Verglasung geplant, welche für einen lichtdurchfluteten, behaglichen Wohnbereich sorgt. Von hier aus gelangen Sie auf den großen, sonnigen Balkon, auf welchem Sie die Aussicht genießen können!
Im Dachgeschoss befindet sich ein großzügiges Elternschlafzimmer von welchem Sie auf die herrliche Dachterrasse kommen, wo Sie ungestört die Ruhe und auch wieder den herrlichen Ausblick genießen können. Nebenan ist ein geräumiges Kinderzimmer und ein schönes Tageslichtbad geplant.
Im Gartengeschoss kommen Sie vom großen, im Wohnraumstandard ausgebauten Zimmer auf die Terrasse und in den sonnigen Garten.
Nebenan befindet sich die Waschküche und ein praktischer Abstellraum.
Die Fußbodenheizung im ganzen Haus sorgt für ein angenehmes Wohnraumklima.
Eine Aufteilung der Zimmer sowie auch eine evtl. Vergrößerung des Hauses ist nach Ihren Wünschen möglich.
Das Haus ist bezugsfertig und sehr gut ausgestattet. Alle Bodenbeläge, Malerarbeiten sowie elektrischen Rollläden sind im Preis enthalten. Es wird in sehr guter Massivbauweise (Stein auf Stein) mit 3-fach Verglasung, Fußbodenheizung, Luft-Wasser-Wärmepumpe (GEG 2024) und Photovoltaik-Anlage erstellt. Energieeffizienzklasse A+.
Das EFH wird in familienfreundlicher Wohnlage im Neubaugebiet von Ostelsheim gebaut. Kindergarten, Grundschule, Supermarkt und Bäcker befinden sich direkt vor Ort und sind zu Fuß erreichbar. Und
die Herrmann-Hesse-Bahn bietet Ihnen eine attraktive Anbindung nach Weil der Stadt und Renningen und von dort aus kommen Sie bequem mit der S-Bahn nach Stuttgart.
Die Umgebung von Ostelsheim mit seiner herrlichen Landschaft lädt zu Spaziergängen und Ausflügen ein.
Kommen Sie zu unserer offenen Besichtigung am Freitag, den 17.04.26 von 14:30-15:30 Uhr:
Adresse: Holunderweg 48 (Baulücke rechts von Haus Nr. 50) 75395 Ostelsheim
Wir freuen uns auf Sie!
Ihre Wünsche können in der Planung noch berücksichtigt werden.
"Eine wahre Gelegenheit für die junge Familie, welche auf einem außerordentlich schönen Grundstück großzügig und mit herrlicher Aussicht wohnen möchte!"
