Ein Traum für die junge Familie: "Wohnen an grüner und ruhiger Oase von Stuttgart" Großzügiges EFH
Objektart
Adresse
Objektdaten
Informationen
Ausstattung
Details
Entdecken Sie die perfekte Verbindung aus urbanem Komfort und naturnahem Wohnen: Dieses großzügige Einfamilienhaus in ruhiger, grüner Randlage von Stuttgart bietet Raum für die ganze Familie - und für Ihre Wohnträume.
Auf einem sonnigen Grundstück erwartet Sie ein stilvolles Zuhause mit durchdachtem Grundriss, hellen Räumen und sehr guter Ausstattung. Große Fensterfronten schaffen eine helle, freundliche Atmosphäre. Genießen Sie entspannte Stunden auf der Terrasse, im Garten oder beim Spaziergang durch die angrenzenden Wiesen und Wälder.
Haus 2:
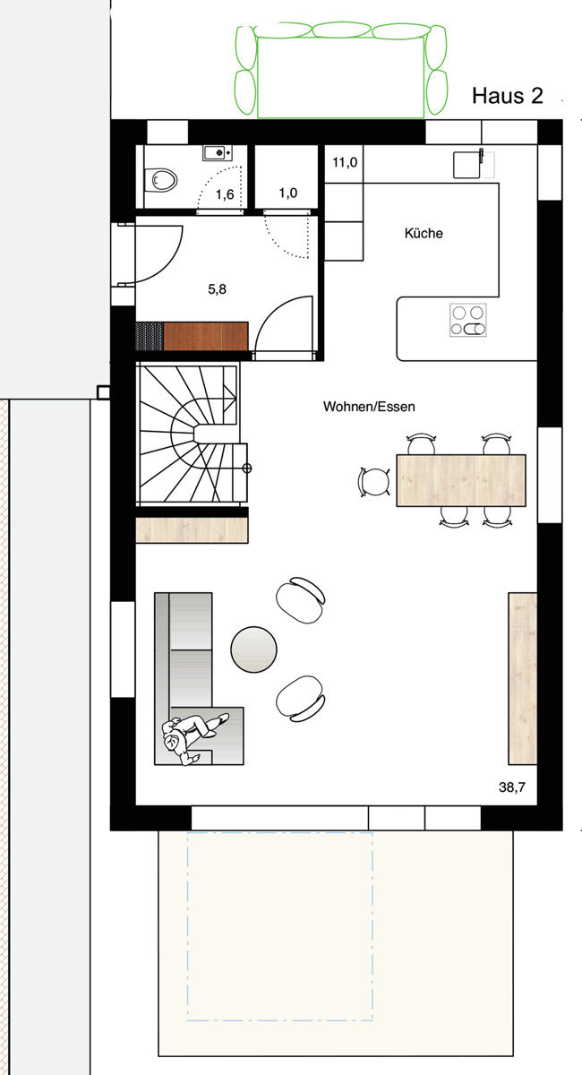
Sie betreten das Haus über eine großzügige Diele mit praktischem Abstellraum und dem Gäste-WC. Von hier aus gelangen Sie in den luftigen, lichtdurchfluteten Wohn-/Essbereich mit offener Küche (ca. 50 qm). Bodentiefe Fenster sorgen hier für eine helle, behagliche Raumatmosphäre. Die Terrasse und der herrliche Garten, wo Sie sich ungestört aufhalten können und die Kinder viel Platz zum Spielen haben, sind nach Süd-West ausgerichtet.
Im Obergeschoss stehen Ihnen zwei große Kinderzimmer zur Verfügung. Der geräumige Elternbereich ist mit einer Ankleide geplant. Angrenzend zu den Schlafräumen befindet sich das komfortable Tageslichtbad.
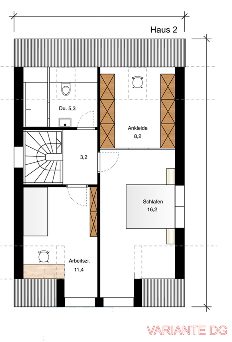
Das Dachgeschoss bietet Ihnen viel Platz für zwei weitere Schlafzimmer und ein Arbeits- oder Gästezimmer. Für Ihren Komfort haben wir hier ein zusätzliches Tageslichtbad geplant.
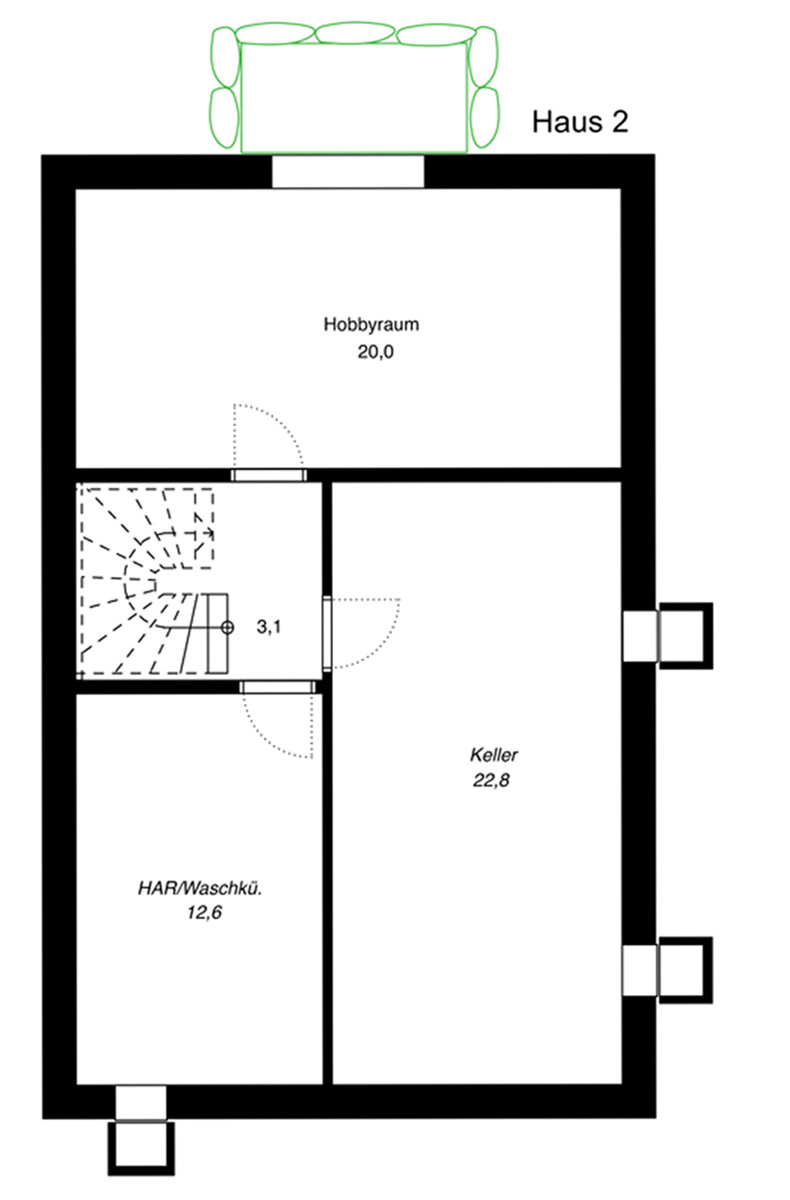
Der großzügige Kellerbereich beinhaltet ein im Wohnraumstandard bereits ausgebauter Hobbyraum mit Lichthof, welcher für viel Lichteinfall sorgt. Nebenan befindet sich ein Kellerraum, sowie der Hauswirtschaftsraum.
Die Fußbodenheizung im ganzen Haus sorgt für ein angenehmes Wohnraumklima.
Das Haus ist bezugsfertig geplant. Alle Bodenbeläge, Malerarbeiten sowie elektrischen Rollläden sind im Preis enthalten.
Dieses Einfamilienhaus wird in sehr guter Massivbauweise (Stein auf Stein) mit 3-fach Verglasung, Fußbodenheizung, Photovoltaik-Anlage und Luft-Wasser-Wärmepumpe erstellt (GEG 2024). Energieeffizienzklasse A+.
Schnell in der Stadt und angrenzend zur Natur. Naherholungsgebiete wie das Feuerbacher Tal und das Landschaftsschutzgebiet Lemberg mit seinen Weinbergen und die gute Infrastruktur machen Feuerbach zu einem begehrten Wohnort. Mit den öffentlichen Verkehrsmitteln ist Feuerbach aus der ganzen Region gut und schnell zu erreichen.
Durch zahlreiche kulturelle Stätten, Sportparks und Einrichtungen für Senioren, Jugendliche und Kinder gewinnt der Stadtbezirk zudem an Attraktivität.
Kindergarten, Grundschule, Gymnasium, Supermarkt sowie die U-Bahnhaltestelle sind in Fußnähe.
Rufen Sie uns gleich an und vereinbaren Sie einen individuellen Besichtigungstermin.
Wir freuen uns von Ihnen zu hören!
Ob als Rückzugsort vom Alltag oder als Lebensmittelpunkt für Ihre Familie - dieses Haus verbindet Lebensqualität mit Lagevorteil.
WOHNEN, WO STUTTGART GRÜN IST. VEREINBAREN SIE JETZT IHREN BESICHTIGUNGSTERMIN!
Energieausweis (Bedarfsausweis)
18,40 kWh / (m²*a) Endenergiebedarf
18,40 kWh / (m²*a) Endenergiebedarf
18,40 kWh / (m²*a) Endenergiebedarf
Weitere Informationen
| Wesentlicher Energieträger | Luft-/Wasser-Wärmepumpe |
| Energieausweis Ausstelldatum | 2025-02-27 |
| Energieausweis gültig bis | 2035-02-26 |
| Energieausweis Jahrgang | ab dem 1.5.2014 |
| Energieausweis Werteklasse | A+ |
| Energieausweis Baujahr | 2026 |
| Energieausweis Gebäudeart | Wohngebäude |
| Heizung | Fußbodenheizung |
| Befeuerung | Luft-/Wasser-Wärmepumpe |
