"Wohnen in herrlicher Randlage mit Blick in die Natur" Sonniges EFH in Weissach mit 6 großen Zimmern
Objektart
Adresse
Objektdaten
Informationen
Ausstattung
Details
In traumhafter Aussichts- und Randlage von Weissach-Flacht haben wir für Sie dieses großzügige EFH mit 6 hellen Zimmern geplant. Der Traum vom eigenen Zuhause mit viel Platz für die ganze Familie kann hier erfüllt werden.
Auf dem sonnigen Balkon und der Terrasse, welche nach Süd-West ausgerichtet sind, können Sie die Natur und die Sonne genießen.
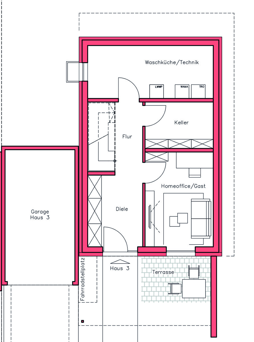
Haus 3:
Sie betreten das Haus über das Gartengeschoss. Im Dielenbereich haben Sie viel Platz für Ihre Garderobe. Ein großes Homeoffice/Gästezimmer mit bodentiefer Verglasung und Terrasse bietet Ihnen verschiedene Möglichkeiten. Nebenan befindet sich ein Kellerraum sowie die geräumige Waschküche.
Im Erdgeschoss bieten Ihnen der große Wohn-Essbereich und die offene Küche mit viel bodentiefer Verglasung eine besondere Wohlfühlatmosphäre und Wohnqualität. Von hier haben Sie direkten Zugang auf den großen sonnigen Balkon wo Sie sich ungestört aufhalten sowie die Ruhe und den Ausblick genießen können. Angrenzend zur Küche ist ein praktischer Abstellraum. Auf dieser Ebene ist auch das Gäste-WC.
Viel Verglasung sorgt in den beiden geräumigen Schlafzimmern im Obergeschoss für helle Räume. Das komfortable Tageslichtbad ist großzügig geplant.
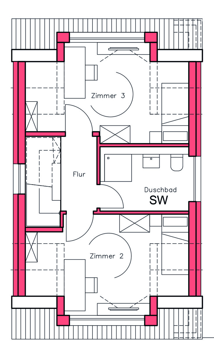
Das attraktive Dachgeschoss bietet zusätzlichen Platz mit zwei großen Schlafzimmern. Für Ihren Komfort haben Sie nebenan die Möglichkeit für ein zusätzliches Tageslicht-Duschbad.
Die Fußbodenheizung im ganzen Haus sorgt für ein angenehmes Wohnraumklima.
Das Haus ist bezugsfertig geplant. Alle Bodenbeläge, Malerarbeiten sowie elektrischen Rollläden sind im Preis enthalten. Dieses Einfamilienhaus wird in sehr guter Massivbauweise (Stein auf Stein) mit 3-fach Verglasung, Fußbodenheizung, Photovoltaik-Anlage und Luft-Wasser-Wärmepumpe erstellt (GEG 2024). Energieeffizienzklasse A+.
Weissach-Flacht bietet Ihnen alles wichtige für die junge Familie:
Kindergarten, Grundschule, Apotheke, Supermarkt und Bäckerei sind am Ort.
Das Gymnasium ist im Nachbarort sehr leicht zu erreichen.
Eine herrliche Landschaft in der Umgebung lädt zu Spaziergängen und Ausflügen ein.
Rufen Sie uns gleich an und vereinbaren Sie einen individuellen Besichtigungstermin.
Wir freuen uns von Ihnen zu hören!
Ihre Wünsche können in der Aufteilung noch berücksichtigt werden.
"Ein Traum für die junge Familie, direkt angrenzend zur Natur modern und sonnig zu wohnen."
