Mitten in Backnang „Moderne und sehr großzügige DHH in reizvoller Lage und mit ruhiger Gartenidylle“
71522 Backnang, Doppelhaushälfte zum Kauf
Objektdaten
-
Objekt-ID13307007
-
ObjekttypenDoppelhaushälfte, Haus
-
Adresse71522 Backnang
-
Etagen im Haus2
-
Wohnfläche ca.189 m²
-
Grundstück ca.349 m²
-
Zimmer7
-
Schlafzimmer5
-
Badezimmer2
-
Separate WC1
-
Terrassen3
-
HeizungsartFußbodenheizung
-
Wesentlicher EnergieträgerLuft/Wasser Wärmepumpe
-
Baujahr2026
-
Zustandprojektiert
-
Ausstattunggehoben
-
BauweiseMassiv
-
AusbaustufeSchlüsselfertig mit Keller
-
Außenstellplatz1
-
Garagenstellplatz1 Stellplatz
-
Kaufpreis815.482 EUR
Kontaktdaten
-
NameFrau Jasmin Glöckner
-
AnschriftGroße Falterstr. 101
70597 Stuttgart -
E-Mail
-
Telefon
Ausstattung / Merkmale
- ✓ Keller
- ✓ Massivbauweise
- ✓ Neubau
- ✓ Schlüsselfertig mit Keller
- ✓ Separates WC
- ✓ Terrasse
Objektbeschreibung
Beschreibung
Diese stilvolle DHH vereint modernes Design mit hoher Wohnqualität – und das in zentraler Lage von Backnang. Großzügige Fensterflächen sorgen für lichtdurchflutete Räume und ein offenes Wohngefühl. Der gepflegte Garten mit gemütlicher Terrasse lädt zum Entspannen und Verweilen ein.
Haus 1:
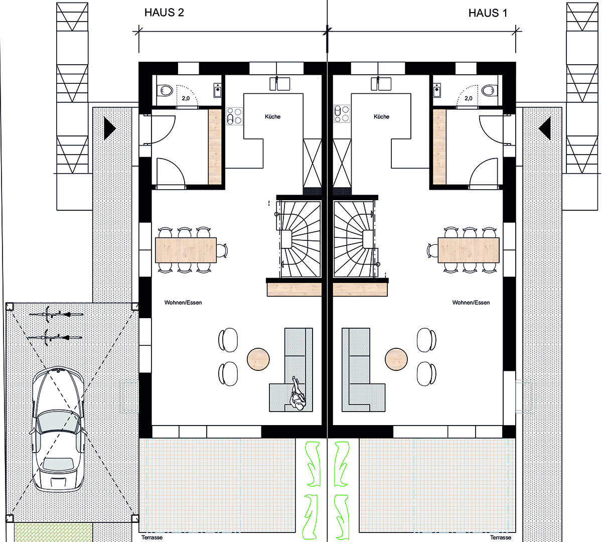
Im Erdgeschoss erwartet Sie ein großzügig geschnittener Wohn-Essbereich mit offener Küche, der mit ca. 48 m² viel Platz für gemeinsames Leben bietet. Der Raum ist lichtdurchflutet und bietet direkten Zugang zur Terrasse und in den Garten. Die moderne Küche ist offen gestaltet und schafft eine angenehme Verbindung zwischen Kochen und Leben. Das Gäste-WC komplettiert das Raumangebot auf dieser Ebene.
Im Obergeschoss finden Sie idealen Rückzugsraum für die Familie. Zwei gut geschnittene Kinderzimmer bieten Platz zum Spielen und Lernen. Das großzügige Elternschlafzimmer verfügt über einen direkten Zugang zur angrenzenden Ankleide – ein echtes Plus für zusätzlichen Komfort. Das moderne Badezimmer ist mit Badewanne, Dusche, WC und Waschtisch ausgestattet und hat alles für den entspannten Start in den Tag.
Im Dachgeschoss befindet sich ein großzügiges Zimmer, das flexibel als zusätzliches Schlafzimmer, Hobbyraum oder Gästezimmer genutzt werden kann. Dieses Zimmer verfügt über einen direkten Zugang zur sonnigen Dachterrasse, wo Sie die Ruhe genießen und sich ungestört aufhalten können – ein echtes Highlight. Ein angrenzender Homeoffice-Bereich schafft ideale Bedingungen für konzentriertes Arbeiten von Zuhause. Als Sonderwunsch ist ein zusätzliches Badezimmer auf diesem Geschoss realisierbar.
Das Gartengeschoss profitiert von der leichten Hanglage des Grundstücks. Ein geräumiges Schlafzimmer mit großen Fenstern schafft eine helle Atmosphäre – ideal als Jugendzimmer oder Gästebereich. Ein Bad ist auf Wunsch als Sonderausstattung möglich. Zusätzlich steht ein großzügiger Kellerraum zur Verfügung, der reichlich Stauraum bietet.
Eine Garage mit zusätzlichem Autostellplatz ist möglich.
Ausstattung
Das Haus ist bezugsfertig geplant. Alle Bodenbeläge, Malerarbeiten sowie elektrischen Rollläden sind im Preis enthalten. Sämtliche Zimmer sind mit Parkettboden ausgestattet.
Diese Doppelhaushälfte wird in sehr guter Massivbauweise (Stein auf Stein) mit 3-fach Verglasung, LWWP (GEG 2024) und Photovoltaik-Anlage erstellt.
Die Fußbodenheizung im ganzen Haus sorgt für ein angenehmes Wohnraumklima.
Energieeffizienzklasse A+.
Sonstiges
Rufen Sie uns gleich an und vereinbaren Sie einen individuellen Besichtigungstermin.
Wir freuen uns von Ihnen zu hören!
Ihre Wünsche können in der Aufteilung noch berücksichtigt werden.
"Hier lassen sich komfortables und familienfreundliche Wohnen mit guter Infrastruktur in naturnaher Lage perfekt verbinden."
Lage
Backnang liegt vor den Toren Stuttgarts und bietet die perfekte Mischung aus urbanem Leben und naturnaher Erholung. Die charmante Innenstadt, gute Schulen, vielfältige Freizeitmöglichkeiten und die hervorragende S-Bahn-Anbindung machen die Stadt besonders attraktiv für Familien und Pendler. Kindergarten, Grundschule, weiterführende Schulen, Einkaufsmöglichkeiten, etc. sind alle vor Ort und zu Fuß zu erreichen.
Hier wohnen Sie ruhig, grün und dennoch bestens vernetzt.
71522 Backnang, Deutschland (auf Google Maps ansehen)














