Eine Freude für die junge Familie: „Wohnen mit herrlichem Sonnengarten“ Moderne DHH in Ostelsheim
75395 Ostelsheim, Doppelhaushälfte zum Kauf
Objektdaten
-
Objekt-ID307071
-
ObjekttypenDoppelhaushälfte, Haus
-
Adresse75395 Ostelsheim
-
Etagen im Haus2
-
Wohnfläche ca.157 m²
-
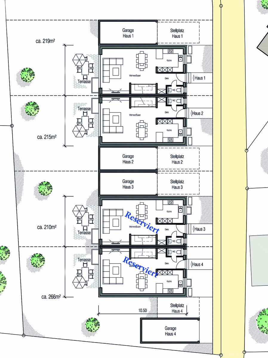
Grundstück ca.215 m²
-
Zimmer6
-
Schlafzimmer4
-
Badezimmer2
-
Separate WC1
-
Terrassen1
-
HeizungsartFußbodenheizung
-
Wesentlicher EnergieträgerLuft/Wasser Wärmepumpe
-
Baujahr2026
-
Zustandprojektiert
-
Ausstattunggehoben
-
BauweiseMassiv
-
AusbaustufeSchlüsselfertig mit Keller
-
Außenstellplatz1
-
Garagenstellplatz1 Stellplatz
-
Kaufpreis663.441 EUR
Kontaktdaten
-
NameFrau Agnes Kech
-
AnschriftGroße Falterstr. 101
70597 Stuttgart -
E-Mail
-
Telefon
Ausstattung / Merkmale
- ✓ Keller
- ✓ Massivbauweise
- ✓ Schlüsselfertig mit Keller
- ✓ Separates WC
- ✓ Terrasse
Objektbeschreibung
Beschreibung
Diese attraktive Doppelhaushälfte entsteht in idyllischer Lage von Ostelsheim, in einem gewachsenen Wohngebiet mit viel Grün. Ein idealer Ort, an welchem sich die junge Familie sofort wohlfühlen wird.
Hier vereinen sich moderne Architektur und durchdachte Grundrisse auf 157 m² Wohnfläche.
Das Haus bietet auf mehreren Ebenen viel Platz zum Leben und Entspannen – mit lichtdurchfluteten Räumen, hochwertigen Materialien und Raum für Ihre individuellen Wünsche.
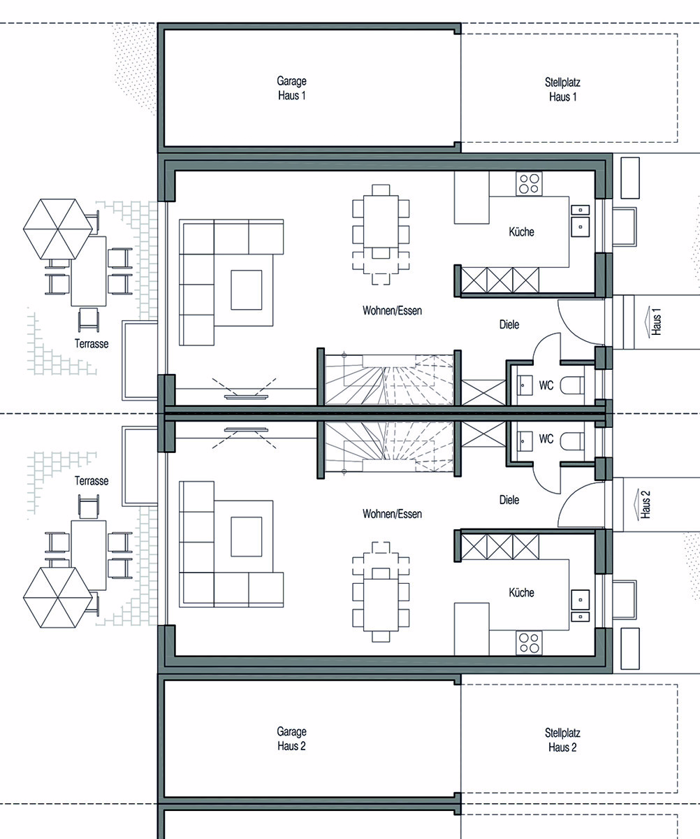
Haus 2:
Bereits beim Betreten empfängt Sie ein heller Eingangsbereich mit einem praktischen Gäste-WC.
Der großzügige Wohn- und Essbereich ist offen gestaltet und bildet den Mittelpunkt des Familienlebens. Große Fensterflächen sorgen für ein freundliches, lichtdurchflutetes Ambiente und einen freien Blick in den eigenen Garten. Die offene Küche fügt sich harmonisch in den Wohnbereich ein – ideal für alle, die Kochen, Genießen und Geselligkeit verbinden möchten.
Auf der Terrasse können Sie sonnige Stunden und entspannte Sommerabende genießen – Ihr ganz persönlicher Rückzugsort im Freien in ruhiger Sonnenlage.
Im Obergeschoss befinden sich zwei helle Kinderzimmer, die viel Raum für Spielen, Lernen und Ruhe bieten.
Ein weiteres Zimmer kann flexibel als Gästezimmer oder Homeoffice genutzt werden – ganz nach Ihren Bedürfnissen.
Das modern ausgestattete Bad überzeugt mit stilvollem Design, Badewanne und Dusche.
Das Dachgeschoss ist als großzügiger Elternbereich geplant. Ein Rückzugsort zum Entspannen und Durchatmen.
Hier erwartet Sie ein behagliches Schlafzimmer mit viel Licht und eine geräumige Ankleide, die ausreichend Platz für Ihre Garderobe bietet. Als Sonderwunsch kann zusätzlich ein komfortables Duschbad integriert werden.
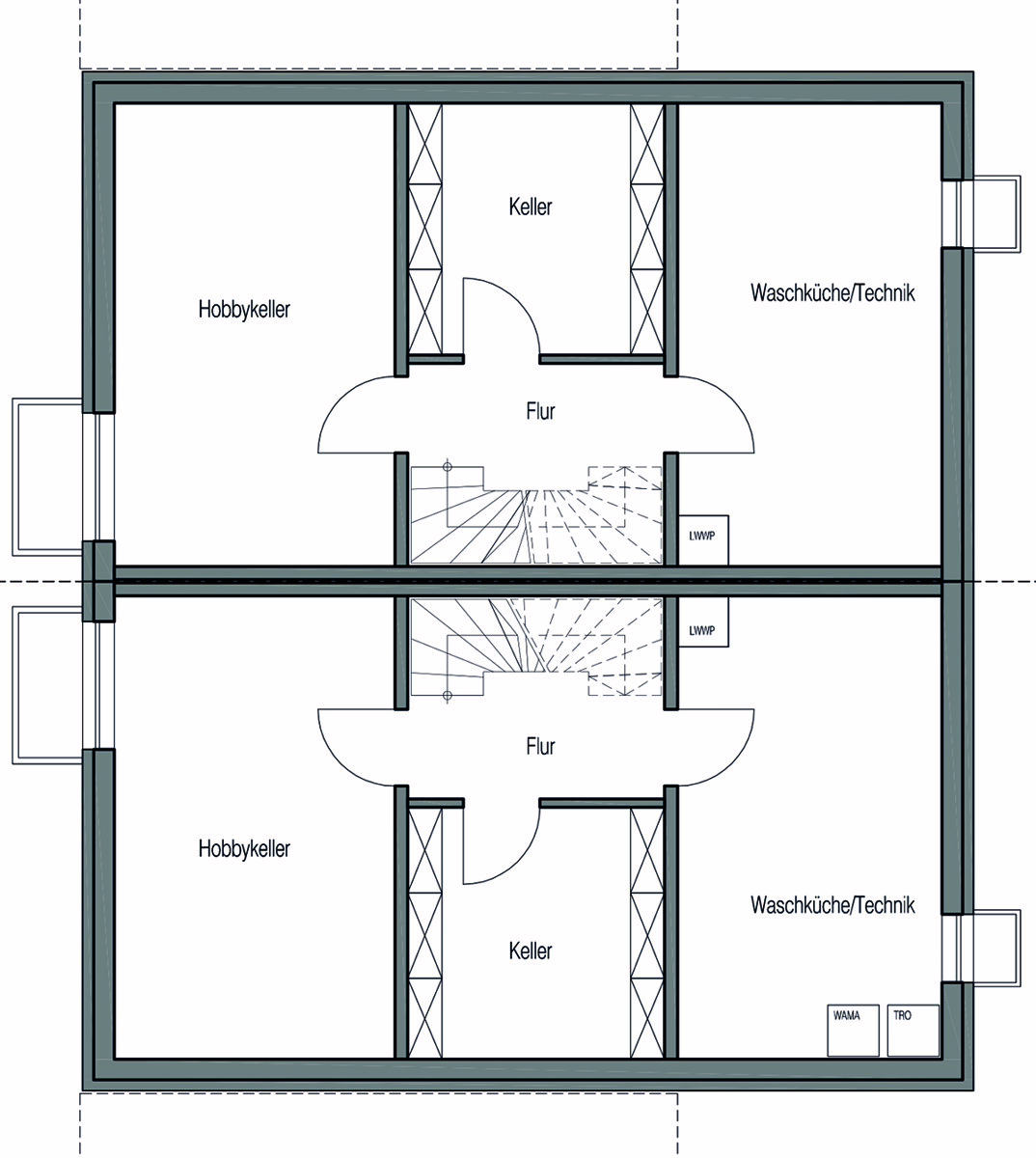
Ein großzügiger Hobbykeller, im Wohnraumstandard bereits ausgebaut, lädt zu vielseitiger Nutzung ein – ob Fitness, Spielzimmer oder Heimkino. Zusätzlich bietet ein separater Kellerraum viel Stauraum. Nebenan befindet sich die Waschküche.
Ausstattung
Das Haus ist bezugsfertig geplant. Alle Bodenbeläge, Malerarbeiten sowie elektrischen Rollläden sind im Preis enthalten. Sämtliche Zimmer sind mit Parkettboden ausgestattet.
Diese Doppelhaushälfte wird in sehr guter Massivbauweise (Stein auf Stein) mit 3-fach Verglasung, Fußbodenheizung, LWWP (GEG 2024) und Photovoltaik-Anlage erstellt, Energieeffizienzklasse A+.
Sonstiges
Vereinbaren Sie gleich einen Termin mit uns am Grundstück, um mehr zu erfahren!
Ihre Wünsche können in der Aufteilung noch berücksichtigt werden.
"Eine Gelegenheit für die junge Familie, großzügig und modern sowie mit herrlichem Sonnengarten zu wohnen."
Lage
Ostelsheim liegt idyllisch zwischen Weil der Stadt und Böblingen – ein Ort, der Ruhe und Natur mit guter Erreichbarkeit verbindet.
Kindergarten, Grundschule, ein Norma Supermarkt sowie zwei Bäckereien befinden sich in Fußnähe.
Die Herrmann-Hesse-Bahn bietet Ihnen eine attraktive Anbindung nach Weil der Stadt und Renningen und von dort aus kommen Sie bequem mit der S-Bahn nach Stuttgart.
Hier genießen Sie naturnahes Wohnen mit kurzen Wegen in die Stadt – ideal für Familien und Berufspendler.
75395 Ostelsheim, Deutschland (auf Google Maps ansehen)















