Perfekt für die junge Familie: „Sonniges, großzügiges Wohnen in Randlage von Weissach“ Moderne DHH
71287 Weissach, Doppelhaushälfte zum Kauf
Objektdaten
-
Objekt-ID13306997
-
ObjekttypenDoppelhaushälfte, Haus
-
Adresse71287 Weissach
-
Etagen im Haus1
-
Wohnfläche ca.162 m²
-
Grundstück ca.296 m²
-
Zimmer6
-
Schlafzimmer5
-
Badezimmer2
-
Separate WC1
-
Balkone1
-
Terrassen1
-
HeizungsartFußbodenheizung
-
Wesentlicher EnergieträgerLuft/Wasser Wärmepumpe
-
Baujahr2026
-
Zustandprojektiert
-
Ausstattunggehoben
-
BauweiseMassiv
-
AusbaustufeSchlüsselfertig mit Keller
-
Außenstellplatz1
-
Garagenstellplatz1 Stellplatz
-
Kaufpreis848.138 EUR
Kontaktdaten
-
NameFrau Agnes Kech
-
AnschriftGroße Falterstr. 101
70597 Stuttgart -
E-Mail
-
Telefon
Ausstattung / Merkmale
- ✓ Balkon
- ✓ Keller
- ✓ Massivbauweise
- ✓ Neubau
- ✓ Schlüsselfertig mit Keller
- ✓ Separates WC
- ✓ Terrasse
Energieausweis
-
EnergieausweistypBedarfsausweis
-
Ausstellungsdatum15.05.2025
-
Gültig bis14.05.2035
-
GebäudeartWohngebäude
-
Baujahr lt. Energieausweis2026
-
PrimärenergieträgerLuft/Wasser Wärmepumpe
-
Endenergiebedarf15,90 kWh/(m²·a)
-
EnergieeffizienzklasseA+
Objektbeschreibung
Beschreibung
Diese DHH wird in einer familienfreundlichen Lage von Weissach gebaut.
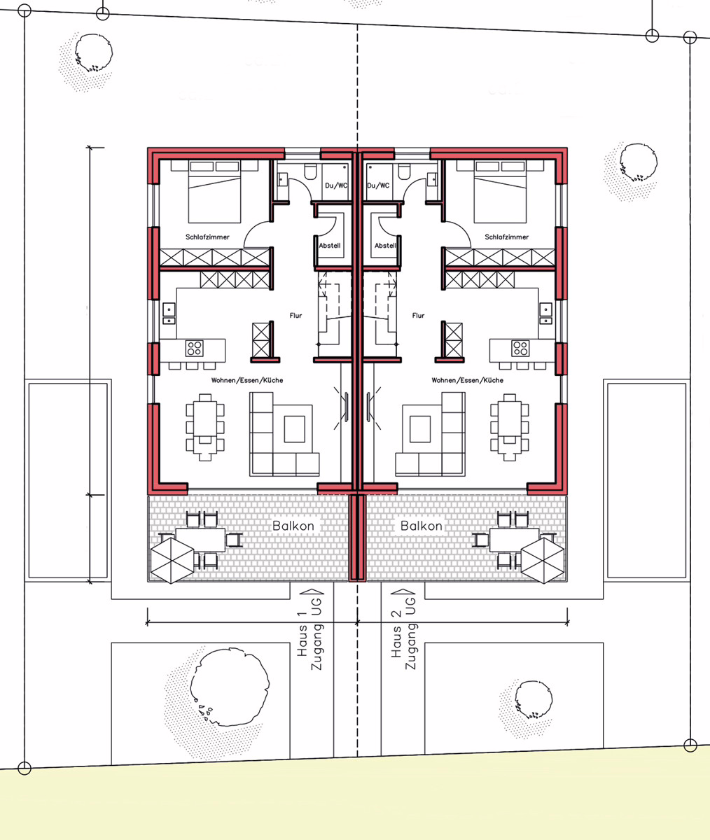
Mit 6 Zimmern, verteilt auf 162 m² Wohnfläche, bietet Ihnen diese moderne DHH viel Platz für Ihre ganze Familie sowie das Homeoffice.
Der sonnige Garten mit der Terrasse und der große Balkon sind nach Süden ausgerichtet. Hier können Sie die Sonne und die Ruhe genießen.
Es besteht die Möglichkeit für eine Garage.
Haus 1:
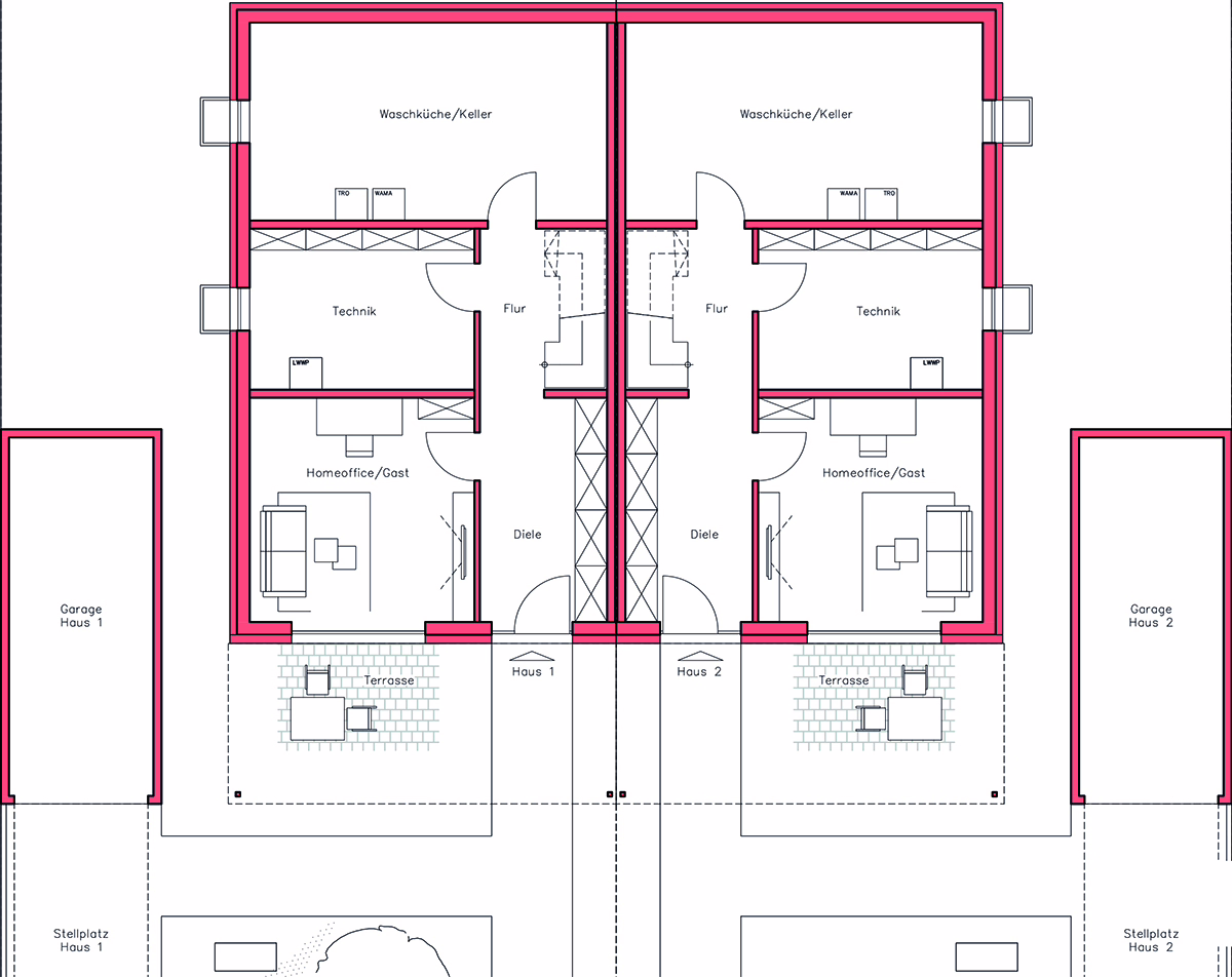
Sie betreten das Haus im Gartengeschoß über eine geräumige Diele, welche Ihnen viel Stauraum für das alltägliche Leben bietet. Von der Diele aus gelangen Sie in das Homeoffice/Gästezimmer und auf die Terrasse. Dahinter ist die Waschküche/Keller und der Technikraum.
Der lichtdurchflutete Wohn-Essbereich mit offener Küche im Erdgeschoß ist mit viel bodentiefer Verglasung geplant, welche für einen behaglichen Wohnbereich sorgt. Von hier aus gelangen Sie auf den großen, sonnigen Balkon, auf welchem Sie sich ungestört aufhalten sowie die Sonne und den Ausblick genießen können. Auf dieser Ebene ist auch ein großes Schlafzimmer sowie ein modernes Duschbad geplant. Der angrenzende Abstellraum ist vielseitig nutzbar.
Im Dachgeschoss stehen Ihnen drei geräumige Zimmer zur Verfügung. Nebenan ist das helle und freundliche Tageslichtbad geplant.
Die Fußbodenheizung im ganzen Haus sorgt für ein angenehmes Wohnraumklima.
Ausstattung
Das Haus ist bezugsfertig und sehr gut ausgestattet. Alle Bodenbeläge, Malerarbeiten sowie elektrischen Rollläden sind im Preis enthalten. Es wird in sehr guter Massivbauweise (Stein auf Stein) mit 3-fach Verglasung, Fußbodenheizung, Luft-Wasser-Wärmepumpe (GEG 2024) und Photovoltaik-Anlage erstellt und weist den Energiestandard A + auf.
Sonstiges
Vereinbaren Sie gleich einen Termin mit uns am Grundstück, um mehr zu erfahren!
Ihre Wünsche können in der Aufteilung noch berücksichtigt werden.
"Eine Gelegenheit für die junge Familie, großzügig und modern in ruhiger Rand- und Sonnenlage zu wohnen"
Lage
Die DHH wird in einer ruhigen und sonnigen Lage von Weissach gebaut.
Kindergarten, Grundschule, Gemeinschaftsschule, Bibliothek, Supermarkt, Bäckerei und eine Postfiliale befinden sich direkt vor Ort. Das Gymnasium ist bequem im Nachbarort zu erreichen.
Die sechs öffentlichen Spielplätze in Weissach lassen die Kinderherzen höherschlagen. Auf dem Walderlebnispfad und den Spazierwegen läßt sich die herrliche Natur erkunden.
71287 Weissach, Deutschland (auf Google Maps ansehen)









